NEW

二タ子売家

1,480万円

佐賀県唐津市二タ子1丁目

唐津線「西唐津」駅徒歩10分

価格
1,480万円
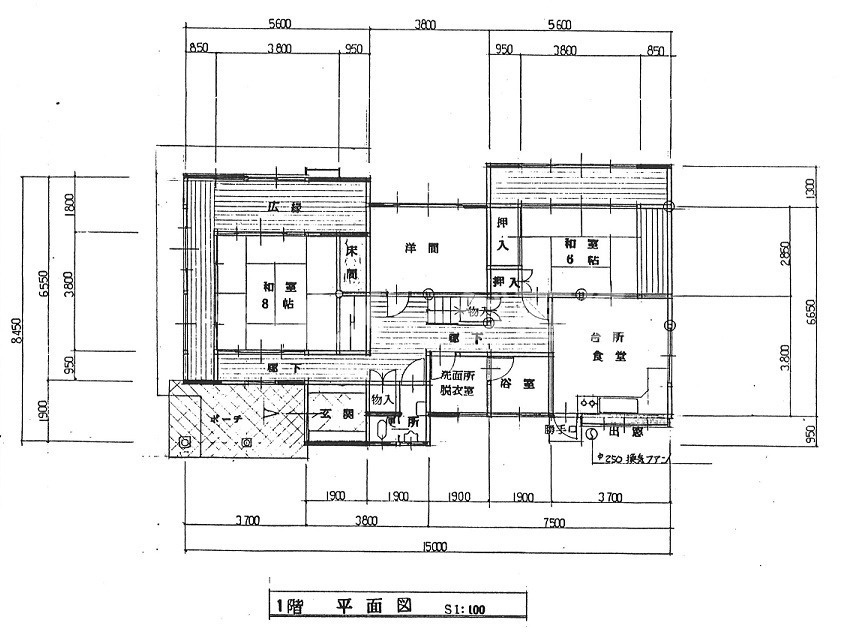
間取り
7DK
土地面積
236.13㎡
所在地
佐賀県唐津市二タ子1丁目
交通

唐津線西唐津」駅 徒歩10分

建物面積
185.88㎡
築年月
1972年11月(築53年)

物件の特徴

  • 室内洗濯機置場

セールスポイント

ぜひ一度見ていただきたい、「二タ子売家」です。斜面傾斜が少ない平坦な土地です。和室が大好きな方、和室8畳以上あれば、趣味等にも生かせます。綺麗な室内の中古戸建て物件で素敵な日々をおくりませんか。お客様によって希望とする条件は異なります。当社スタッフは希望条件をお伺いした上で、不動産を紹介しております。

ポイント

駅徒歩10分以内 和室8畳以上 専有面積30坪以上 和室 土地70坪以上

担当者のコメント

新生活を失敗せず、スタートさせたいならこちらの「二タ子売家」はいかがでしょうか。設備も充実した、快適な暮らしのある7DKの物件はこちらです。建物面積30坪以上というゆとりある空間が魅力的な物件です。和室8畳以上で、家族全員で食卓を囲むことも出来ます。当社では、唐津市にある不動産情報を数多くご用意しております。お引っ越しをお考えの方は、この機会にぜひご連絡ください。

基本情報

販売戸数
-
総戸数
-
間取り / 詳細
7DK
和室 6.0帖 3室/和室 8.0帖 1室/和室 10.0帖 1室/洋室 6.0帖 1室/洋室 4.5帖 1室/DK 6.0帖 1室
増築及び未登記部分あり
向き
-
建物面積(坪数)
185.88㎡(56.22坪)
土地面積(坪数)
236.13㎡(71.42坪)
建ぺい率 /
容積率
60%/200%
築年月
1972年11月(築53年)
駐車場 /
月額料金
有 -
土地権利
所有権
土地
(敷金 / 保証金)
- / -
建物構造
木造 / 2階建
傾斜地部分面積
-
路地状敷地
-
私道負担面積
-
セットバック
高圧線下面積
-
施工会社
-
用途地域
第一種中高層住居専用
地目 / 地勢
宅地 / 平坦
接道状況
一方(北 公道 4.0m 間口 12.0m)
国土法届出要否
不要
都市計画
非線引区域
総区画数 /
販売区画数
-/-
現況
空家
その他
法令上の制限
-
取引態様
仲介
引渡し
相談
取引条件の
有効期限
2026年02月04日

設備条件

設備条件
  • 室内洗濯機置場 / フローリング / 公営水道 / 公共下水 / 電気有
設備(その他)
    -

その他

物件番号
63824469
管理コード
-
建築確認番号
-
情報更新日
2026年01月21日
次回更新予定日
2026年02月04日
取扱会社
  • 株式会社富士
  • 佐賀県唐津市西城内1-2 
  • TEL:0955-72-1188
  • 佐賀県知事 (7) 第1912号
備考
新生活を失敗せず、スタートさせたいならこちらの「二タ子売家」はいかがでしょうか。建物面積185.88㎡もありますので、ご検討ください。フローリング張りの物件です。斜面の多い場所よりも、坂の少ない平坦地での生活はいかがですか。唐津市には多種多様な一戸建てがございますので、マイホームの購入をお考えなら、ぜひ当社までご連絡ください。お待ちしております。

二タ子売家の他の物件

  1. 6DK (139.49㎡)

    393万円(9.32万円/坪)

周辺施設

  • 西唐津中学校の画像

    中学校

    西唐津中学校

    474m(6分)

  • 済生会唐津病院の画像

    総合病院

    済生会唐津病院

    781m(10分)

  • セブンイレブン 唐津二タ子3丁目店の画像

    コンビニエンスストア

    セブンイレブン 唐津二タ子3丁目店

    828m(11分)

  • ファミリーマート 唐津菜畑店の画像

    コンビニエンスストア

    ファミリーマート 唐津菜畑店

    841m(11分)

  • 西唐津小学校の画像

    小学校

    西唐津小学校

    897m(12分)

  • 唐津警察署の画像

    警察

    唐津警察署

    929m(12分)

  • 唐津警察署 西唐津交番の画像

    警察

    唐津警察署 西唐津交番

    1715m(22分)

  • 佐賀銀行唐津支店の画像

    銀行

    佐賀銀行唐津支店

    1733m(22分)

  • 株式会社まいづる百貨店 まいづるCARROT店の画像

    スーパー

    株式会社まいづる百貨店 まいづるCARROT店

    1841m(24分)

支払いシミュレーション

月々の支払額
9.6
購入希望物件価格
万円
頭金
万円
金利
%
返済額(ボーナス1回分)
万円
返済期間

※ボーナスは自動で年2回分で計算されます。

近隣の物件

  1. 西籏町売家

    唐津市西旗町

    4LDK (105.99㎡)

    2,9998,000

  2. 久里天園売家

    唐津市久里

    4LDK (107.70㎡)

    1,400万円

  3. 北波多田中売家

    唐津市北波多田中

    5DK (111.50㎡)

    1,199万円

  4. 菜畑売家

    唐津市菜畑

    4SLDK (102.67㎡)

    2,8998,000

二タ子売家

二タ子売家

1,480万円

-

7DK(185.88㎡)

お気軽にお問い合わせください

無料お問い合わせ

株式会社富士

0955-72-1188

9:00~18:00

(休:なし)